Brno - Líšeň
Trnkova
14
dům 1 2.NP
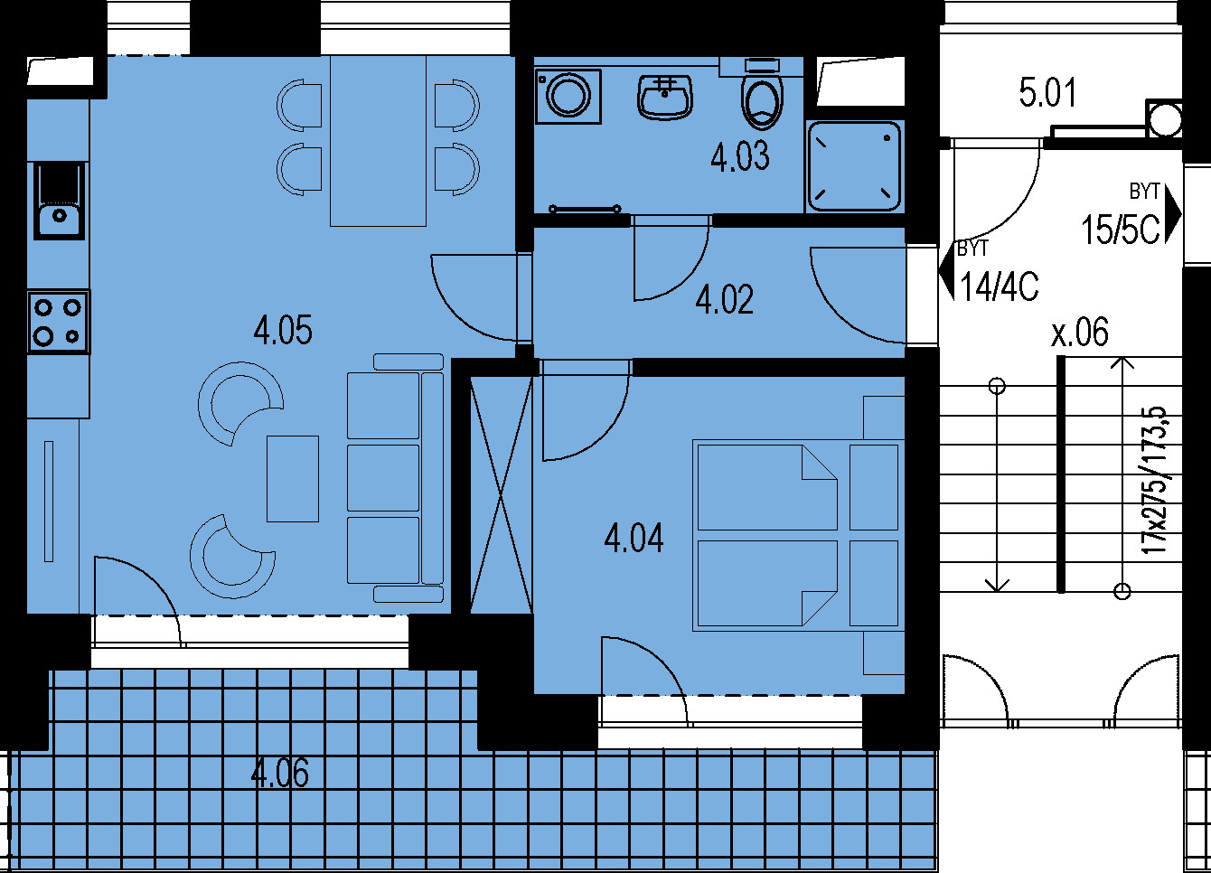
2+kk 45.10 m2
orientace ZV
sklep 4.00 m2
parkovací stání 1
info@bydlenibrno.cz 603 267 670
info@bydlenibrno.cz 603 267 670