Brno - Líšeň
Trnkova
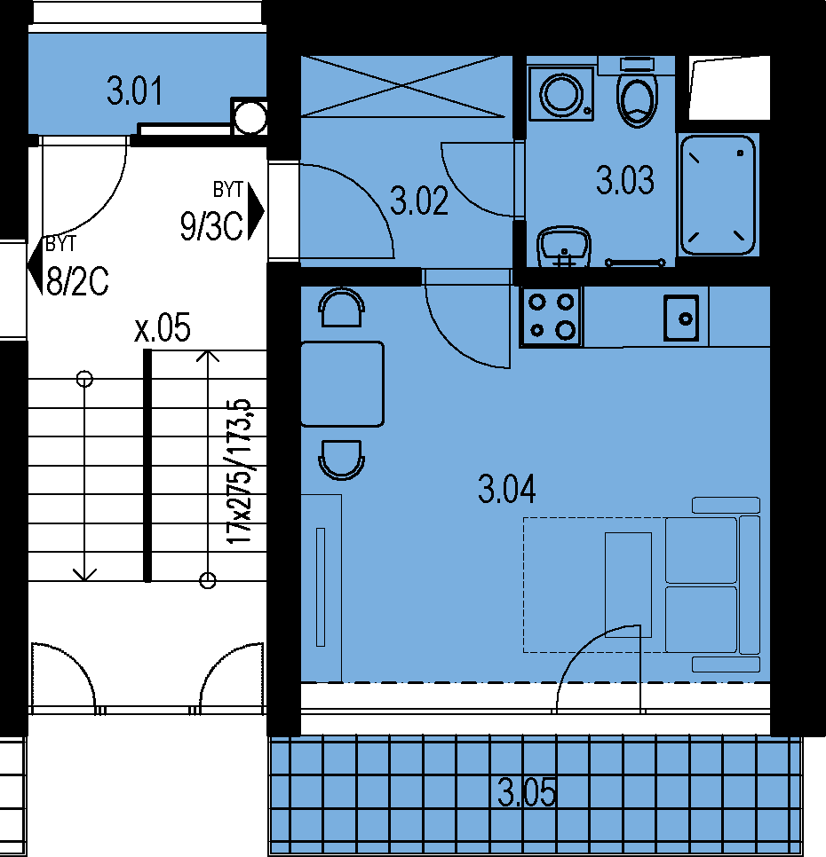
9
dům 1 1.NP
1+kk 26.30 m2
orientace V
sklep 2.00 m2
parkovací stání 1
info@bydlenibrno.cz 603 267 670
info@bydlenibrno.cz 603 267 670